1. Início
  2. >
  3. Imóveis
  4. >
  5. 3 Lotes Para Construção Em Altura, No Sobreiro Curvo, Torres Vedras
Media: 30
/
Certificação Energética NC

3 Lotes Para Construção Em Altura, No Sobreiro Curvo, Torres Vedras

Torres Vedras, Lisboa

1032m²
525,000 €

Descrição

### ANGARIAÇÃO PARTICULAR - Esta angariação não provém de desinvestimento bancário ###

Para mais informações:
Rui Arez
📞+351_965_150_149
✉ rarez@remax.pt


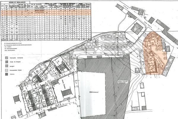
3 Lotes para construção em altura na pacata aldeia do Sobreiro Curvo, Torres vedras

LOTE 2
Área de implantação de 468m²
Área de construção de 1404m²
Este lote permite a construção de uma unidade hoteleira com 70 camas ou para 10 apartamentos.
Para construção de edifício com 3 pisos acima da cota soleira

LOTE 3
Área de implantação de 326m²
Área de construção 847m², aprovado para 10 apartamentos
Cave para estacionamento + 2 pisos de habitação + 1 piso de aproveitamento de sótão

LOTE 4
Área de implantação de 238m²
Área de construção de 618m²,aprovado para 5 apartamentos
Cave para estacionamento + 2 pisos de habitação + 1 piso de aproveitamento de sótão


Localizado:
a 50min de Lisboa
a 10min de Torres Vedras e da A-8
a 10 min das belas praias de Santa -Cruz,Porto Novo e Santa Rita

Sobreiro Curvo situa-se na freguesia de A-Dos-Cunhados, que tem todo o tipo de comercio e serviços tais como Escola Primaria e creche , Bancos, Farmácias. Superfícies Comerciais, Restaurantes, Parque Verde de Lazer e Parque Desportivo

Situa-se a 15m dos Hospitais Soerad e CUF Bem como do Hospital Publico

Perfeito para Investimento!!


Sobreiro Curvo, no Concelho de Torres Vedras, é uma excelente escolha para quem procura terrenos para construir a sua nova habitação com qualidade de vida e tranquilidade. Rodeada por paisagens naturais e próxima das praias de Santa Cruz, oferece o equilíbrio perfeito entre campo e mar. A zona beneficia de bons acessos e de uma comunidade acolhedora, onde se preservam tradições rurais, festas locais e uma forte ligação à terra. Ideal para quem valoriza autenticidade, espaço e bem-estar.


Para mais informações ou marcação de visita, entre em contacto comigo!


A RE/MAX + Grupo Vantagem existe para o ajudar a realizar sonhos, seja na compra ou na venda do seu imóvel.

Localização

Pontos de Interesse

(Num raio de 2km)

A carregar pontos de interesse...

Ref. Imóvel: T-27884

Consultor Responsável

Agent Photo
Rui Arez

Vantagem Central - Banca

Interessado neste Imóvel?

Simulador de Crédito Habitação

Montante do Empréstimo €262.500,00
Taxa (Euribor + Spread) 3.5%
Prestação Mensal: €1.016,90
Total a Pagar €488.112,61
Total de Juros €225.612,61
Gold Logo

Informações legais

Imóveis em destaque

Descubra as melhores oportunidades do mercado imobiliário português