1. Início
  2. >
  3. Imóveis
  4. >
  5. Apartamento T2 para venda
Media: 8 fotos
/
Certificação Energética A

Apartamento T2 para venda

Paços de Ferreira, Porto

101.5m²
2
2
258,000 €

Desde 500/mês

Descrição

Apartamento T2 com varanda e lugar de garagem, em Freamunde, Paços de Ferreira




Localização e envolvente:


Localização privilegiada na Avenida da Escola Secundária, em área de habitação do tipo unifamiliar e multifamiliar. Zona calma. Fácil acesso/distribuição automóvel e pedonal.


Próximo da Escola Básica e Secundária de Freamunde




Principais características:


- apartamento T2 (80,00m2)


- varanda (8,90m2)


- 3.º andar


- uma frente (orientação poente)


- suite


- lugar de garagem




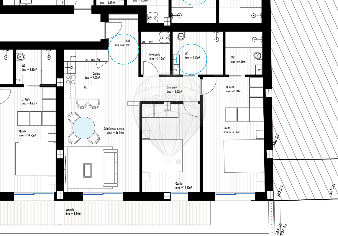
Apartamento:


- átrio de entrada (3,20m2)


- sala comum (16,30m2) em open space com a cozinha (7,00m2), equipada com placa de indução, exaustor, forno, microondas e frigorífico, com acesso a uma varanda


- varanda (8,90m2)


- zona de circulação dos quartos (3,60m2)


- lavandaria (3,10m2)


- instalação sanitária (5,40m2) com lavatório, sanita e base de duche


- quarto (12,80m2) com armário embutido


- suite (12,00m2) com quarto de vestir (5,30m2) e instalação sanitária (4,00m2) com lavatório, sanita e base de duche




Outras características e valências:


Apartamento:


- pavimento vinílico


- instalações sanitárias com pavimento cerâmico


- tetos falsos com projetores led


- carpintarias lacadas (branco mate)


- caixilharia em alumínio com vidro duplo


- estores elétricos


- aquecimento de águas sanitárias com bomba de calor


- pré-instalação de ar condicionado para aparelhos murais


- videoporteiro




Geral


- revestimento da fachada do prédio com isolamento térmico (ETICS)




Pontos de interesse:


- junto a uma pastelaria


- a 100 da Escola Básica e Secundária de Freamunde


- a 400m do Pavilhão Desportivo de Freamunde


- a 650m do Intermarché


- a 700m do Centro Escolar de Freamunde


- a 800m da Piscina Municipal de Freamunde


- a 1,2km da Escola Básica 2,3 Dr. Manuel Pinto Vasconcelos


- a 1,6km do Parque de Lazer de Freamunde


- a 1,6km do Hospital Lusíadas Paços de Ferreira


- a 1,6km do Continente


- a 2,6km do centro de Paços de Ferreira




Transportes e acessos:


- a 400m da N207


- a 3,8km do acesso à A42




Nota: para maior facilidade na identificação deste imóvel, por favor, refira o respectivo ID. Em caso de agendamento de visita, faça-se acompanhar de um documento de identificação. Muito obrigado!


*****


;ID RE/MAX: 126401038-266

Localização

Pontos de Interesse

(Num raio de 2km)

A carregar pontos de interesse...

Ref. Imóvel: 126401038-266

Consultor Responsável

Agent Photo
Cristina Miranda
Interessado neste Imóvel?

Simulador de Crédito Habitação

Montante do Empréstimo €129.000,00
Taxa (Euribor + Spread) 3.5%
Prestação Mensal: €499,73
Total a Pagar €239.872,48
Total de Juros €110.872,48
Gold Logo

Informações legais

Imóveis em destaque

Descubra as melhores oportunidades do mercado imobiliário português