1. Início
  2. >
  3. Imóveis
  4. >
  5. Apartamento T2 para venda
fotos: 34
Property image
/
Certificação Energética A

Apartamento T2 para venda

Porto, Porto

79.32m²
2
2
300,000 €

Desde 581/mês

Descrição

O crescimento do Porto caminha em direção a Campanhã, um dos bairros mais carismáticos da cidade. Desde a fixação de projectos culturais e empresariais de referência, destacando-se o M-ODU (com cerca de 26.000 m2, mais de 8.000 m2 destinados a negócios, cultura e serviços e 12.000 m2 a escritórios e restaurantes), até à forte dinâmica de reabilitação impulsionada pelo novo Centro de Transportes da Cidade, toda a periferia oriental da cidade ganhou a centralidade que há muito exigia. 


O edifício localiza-se em zona ARU, é composto por 61 apartamentos de tipologias T1 e T2 com orientação solar nascente e poente, todos com varanda (ou terraço) e classe energética A, 59 lugares de garagem de estacionamento e 21 arrecadações.


A conclusão da obra está prevista para o final de 2026.


Com arquitetura do atelier Granjo, liderado por Sofia Granjo, a abordagem contemporânea e sustentável do edifício está totalmente focada em acompanhar o ritmo de uma cidade cosmopolita.


Beneficia de fácil acesso às principais vias rodoviárias que ligam o norte ao sul do país, bem como à principal estação ferroviária, terminal intermodal de Campanhã, e ao aeroporto internacional do Porto.


A proximidade a uma das zonas nobres da cidade, as Antas, faz com que todos os serviços e comércio, tais como o Alameda Shop & Spot e a Fábrica do Cobre Retail Park, estejam a apenas 5 minutos de distância.


A estação de metro NASONI, assim designada em homenagem ao arquitecto italiano que deixou a sua marca na paisagem do Porto, fica a 2 minutos a pé e é um fator diferenciador para um estilo de vida urbano e sustentável.


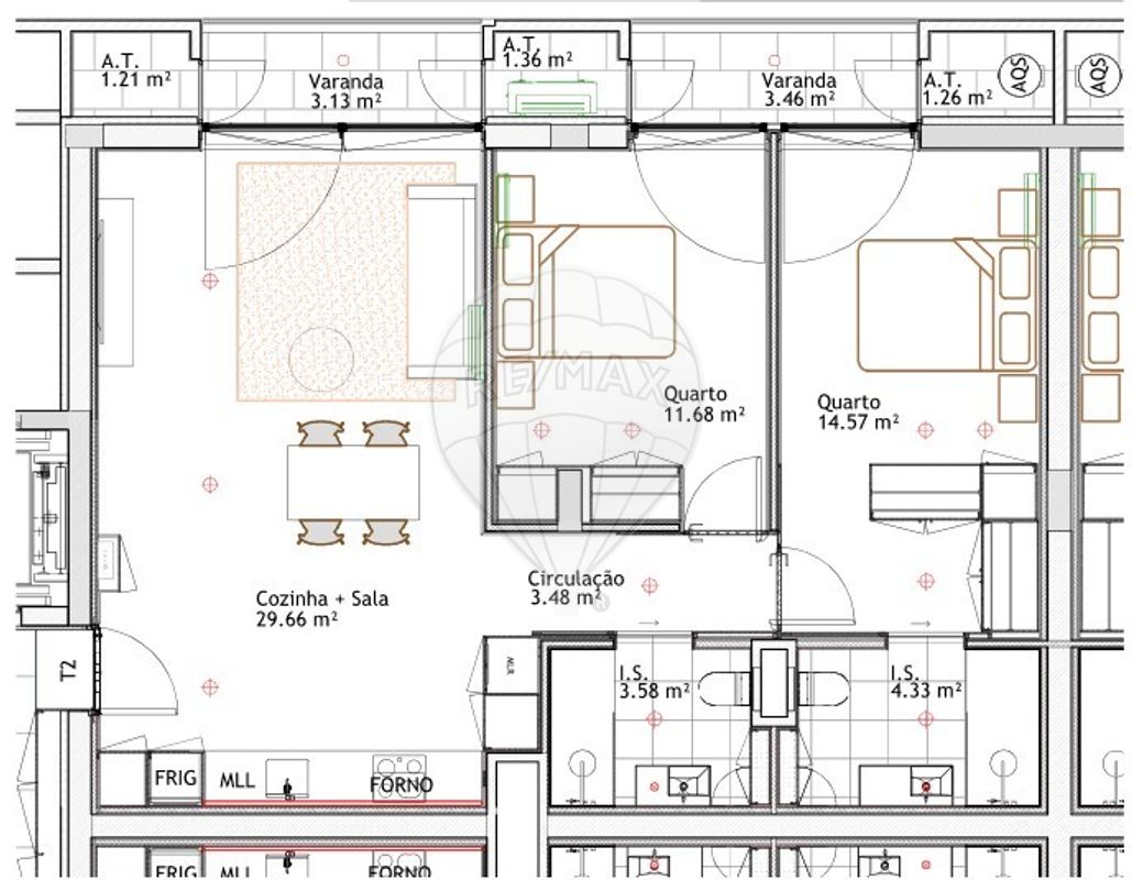
Este apartamento, de tipologia T2, tem orientação solar a Poente, 2 quartos, sala em ”open space” com a cozinha, 2 casas de banho completas, varanda e um lugar de garagem.


Para mais informações, por favor contacte-nos!


Nota: A área útil indicada corresponde à área bruta privativa que consta no projecto de arquitectura aprovado na Câmara Municipal do Porto.


;ID RE/MAX: 126401103-34

Características

Construção Nova

Localização

Varanda

Jardim

Ar Condicionado

Cozinha Equipada

Urbano

Em Construção

Centro da Cidade

Trânsito de Acesso Fácil

Oeste

Localização

Pontos de Interesse

(Num raio de 2km)

A carregar pontos de interesse...

Ref. Imóvel: 126401103-34

Consultor Responsável

Agent Photo
Edite Simões

Collection Vantagem Oporto

Interessado neste Imóvel?

Simulador de Crédito Habitação

Montante do Empréstimo €150.000,00
Taxa (Euribor + Spread) 3.5%
Prestação Mensal: €581,09
Total a Pagar €278.921,49
Total de Juros €128.921,49
Gold Logo

Informações legais

Imóveis em destaque

Descubra as melhores oportunidades do mercado imobiliário português