1. Início
  2. >
  3. Imóveis
  4. >
  5. Apartamento T3 para venda
Media: 16 fotos
/
Certificação Energética C

Apartamento T3 para venda

Vila Nova de Gaia, Porto

108.9m²
2
3
308,000 €
Novidade

Desde 597/mês

Descrição

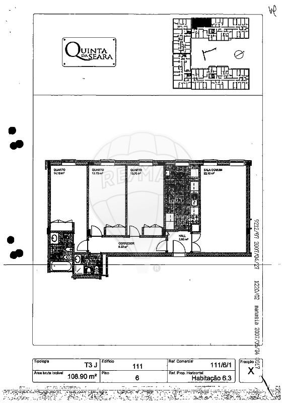
Apartamento T3 constituído por:



- Hall de entrada


- Sala comum espaçosa e luminosa, 


- 1 Suíte com roupeiro embutido 


- 2 quartos com roupeiros embutidos, 


- Casa de banho de apoio completa


- Cozinha (equipada com placa, forno, exaustor e frigorífico) com lavandaria fechada (equipada com máquina de lavar roupa)


- 2 Lugares de garagem


- Arrecadação



Localizado na freguesia de Oliveira do Douro, concelho de Vila Nova de Gaia, distrito do Porto.



Situado em zona habitacional tranquila, próximo de pontos de comércio, serviços, escolas e transportes públicos. Com excelentes acessibilidades, próximo às principais estradas, como a N222, A20 e A29. A cerca de 5 minutos da estação de metro de D. João II. 



;ID RE/MAX: 120931459-67

Localização

Pontos de Interesse

(Num raio de 2km)

A carregar pontos de interesse...

Ref. Imóvel: 120931459-67

Consultor Responsável

Agent Photo
Teresa Couto

Vantagem Gaya

Interessado neste Imóvel?

Simulador de Crédito Habitação

Montante do Empréstimo €154.000,00
Taxa (Euribor + Spread) 3.5%
Prestação Mensal: €596,58
Total a Pagar €286.359,40
Total de Juros €132.359,40
Gold Logo

Informações legais

Imóveis em destaque

Descubra as melhores oportunidades do mercado imobiliário português