1. Início
  2. >
  3. Imóveis
  4. >
  5. Apartamento T3 para venda
fotos: 9
Property image
/
Certificação Energética NC

Apartamento T3 para venda

Loures, Lisboa

106.52m²
2
3
490,000 €

Desde 949/mês

Descrição

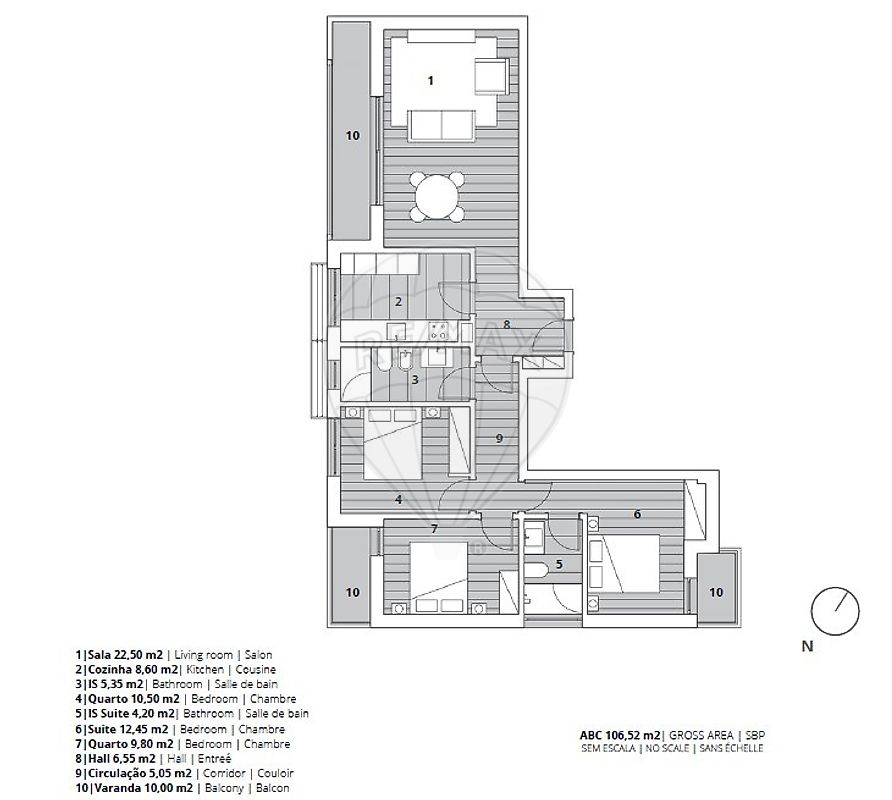
Apartamento T3 no empreendimento Aurya Vista – Quinta do Conventinho, Santo António dos Cavaleiros


Apresentamos este magnífico apartamento T3, inserido no novo empreendimento Aurya Vista, localizado na Quinta do Conventinho, em Santo António dos Cavaleiros (Loures).


Principais características:


Tipologia: T3 — três quartos, ideais para uma família ou quem procura espaço. 


Área 106,52 m² 


Organização funcional: ampla sala de estar/jantar, cozinha totalmente equipada, varanda com ótima exposição solar e vistas desafogadas. 


Century 21 Portugal


Estacionamento: Box para dois carros, para maior conforto e segurança. 


Empreendimento com bons acabamentos, elevador, foco em qualidade de vida e ambiente moderno. 


Localização & envolvente:


Situado numa zona tranquila, o empreendimento beneficia de vista desafogada e excelente entrada de luz natural. 


Apenas cerca de 10 minutos de carro do centro de Lisboa, o que oferece equilíbrio entre vida citadina e tranquilidade residencial. 


Zona com bom acesso a transportes, comércio local e áreas verdes, pensada para o equilíbrio entre cidade e tranquilidade. 



Diferenciais que encantam:


Acabamentos de qualidade, cozinhas equipadas, varandas soalheiras, materiais modernos, pronto para abraçar o seu novo estilo de vida. 


Visão para o futuro, morar num local em crescimento, com o conforto de estar perto da capital mas longe ao mesmo tempo da agitação quotidiana.


Ideal para quem procura um espaço amplo, moderno, com boa luz e varanda/terraço para viver ou receber.


Valoriza localização estratégica, perto de Lisboa, mas inserido numa zona mais tranquila?


Deseja acabamentos de qualidade e comodidades modernas num edifício de nova geração?


Quer investimento com potencial de valorização num empreendimento bem posicionado?


Então este imóvel está adptado às suas necessidades.



Descubra a sua nova casa no Aurya, agende já a sua visita!!


;ID RE/MAX: 121962124-16

Características

Vistas Exteriores

Varanda

Cozinha Equipada

Urbano

Perto de Hospital

Perto de Parque

Residencial

Localização

Pontos de Interesse

(Num raio de 2km)

A carregar pontos de interesse...

Ref. Imóvel: 121962124-16

Consultor Responsável

Agent Photo
Ricardo Reis

Vantagem Central

Interessado neste Imóvel?

Simulador de Crédito Habitação

Montante do Empréstimo €245.000,00
Taxa (Euribor + Spread) 3.5%
Prestação Mensal: €949,11
Total a Pagar €455.571,77
Total de Juros €210.571,77
Gold Logo

Informações legais

Imóveis em destaque

Descubra as melhores oportunidades do mercado imobiliário português