1. Início
  2. >
  3. Imóveis
  4. >
  5. Apartamento T3 para venda
fotos: 35
Property image
/
Certificação Energética C

Apartamento T3 para venda

Azambuja, Lisboa

104m²
2
3
255,000 €

Desde 494/mês

Descrição

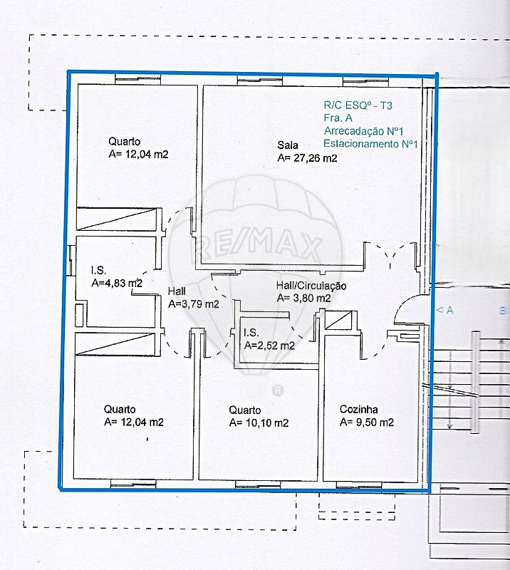
Apartamento T3


Situado em Aveiras de Cima, com 105m2 de área bruta privativa e 43m2 de área bruta dependente, distribuídos em uma garagem e uma arrecadação com cerca
de 29m2. Localizado num R/C elevado, de um prédio sem elavador, este apartamento oferece a praticidade de um rés-do-chão com a privacidade de um primeiro andar.
Localização:Aveiras de Cima, zona habitacional calma, com bons acessos e vistas desafogadas.


Características principais:



  • Área bruta total: 148 m² 

  • Composto por divisões espaçosas e bem distribuídas 

  • Sala ampla com 27m2, com lareira, 

  • 2 casas de banho,  

  • 3 quartos bem iluminados 

  • Cozinha semi-equipada 

  • Garagem no piso-1 

  • Arrecadação com 29 m2, no sótão 

  • Janelas com vidros duplos para melhor insonorização e isolamento térmico


Proximidades:  



  • Zonas verdes e parque infantil 

  • Próximo de serviços essenciais: supermercados, farmácias, escolas e jardim de infância.

  • Facilidade de estacionamento, também no exterior 



Acessibilidades:



  • 1 minuto do acesso à A1 

  • 30 minutos de Lisboa Via A1

  • 20 minutos de Santarém via A1

  • 8 minutos do Cartaxo e Azambuja (estação dos comboios)  


Apartamento versátil e bem localizado, numa vila tranquila mas bem servida de comércio e serviços, que conjuga funcionalidade, espaço e ótimos acessos, ideal para famílias que procuram viver num ambiente tranquilo e ao mesmo tempo próximo das grandes cidades. Se precisar de mais informações ou ajuda para algo relacionado com este imóvel, fico à disposição!  


;ID RE/MAX: 125011253-3

Localização

Pontos de Interesse

(Num raio de 2km)

A carregar pontos de interesse...

Ref. Imóvel: 125011253-3

Consultor Responsável

Agent Photo
José Agostinho

Vantagem Planície

Interessado neste Imóvel?

Simulador de Crédito Habitação

Montante do Empréstimo €127.500,00
Taxa (Euribor + Spread) 3.5%
Prestação Mensal: €493,92
Total a Pagar €237.083,27
Total de Juros €109.583,27
Gold Logo

Informações legais

Imóveis em destaque

Descubra as melhores oportunidades do mercado imobiliário português