1. Início
  2. >
  3. Imóveis
  4. >
  5. Duplex T2 para venda
fotos: 39
Property image
/
Certificação Energética B-

Duplex T2 para venda

Porto, Porto

119.98m²
2
2
450,000 €

Desde 872/mês

Descrição

Apartamento T2 Duplex de charme (com Jardim 40 metros) – na Travessa da Figueiroa / Porto – Construção de 2023 – junto ao Metro (estação da Lapa)


 


Inserido num edifício totalmente reabilitado, projeto do prestigiado gabinete de arquitetura “Pedra Liquida”, na Travessa da Figueiroa (entre a Rua da Boavista e a Rua Alvares Cabral), junto à Rua de Cedofeita e a 200m do Metro (estação da Lapa), proporciona um ambiente de extremo conforto no coração da cidade do Porto.


 


O apartamento tem 3 frentes – Nascente / Poente / Sul


Dispõe de um espetacular jardim de 40 m2, no átrio do edifico.


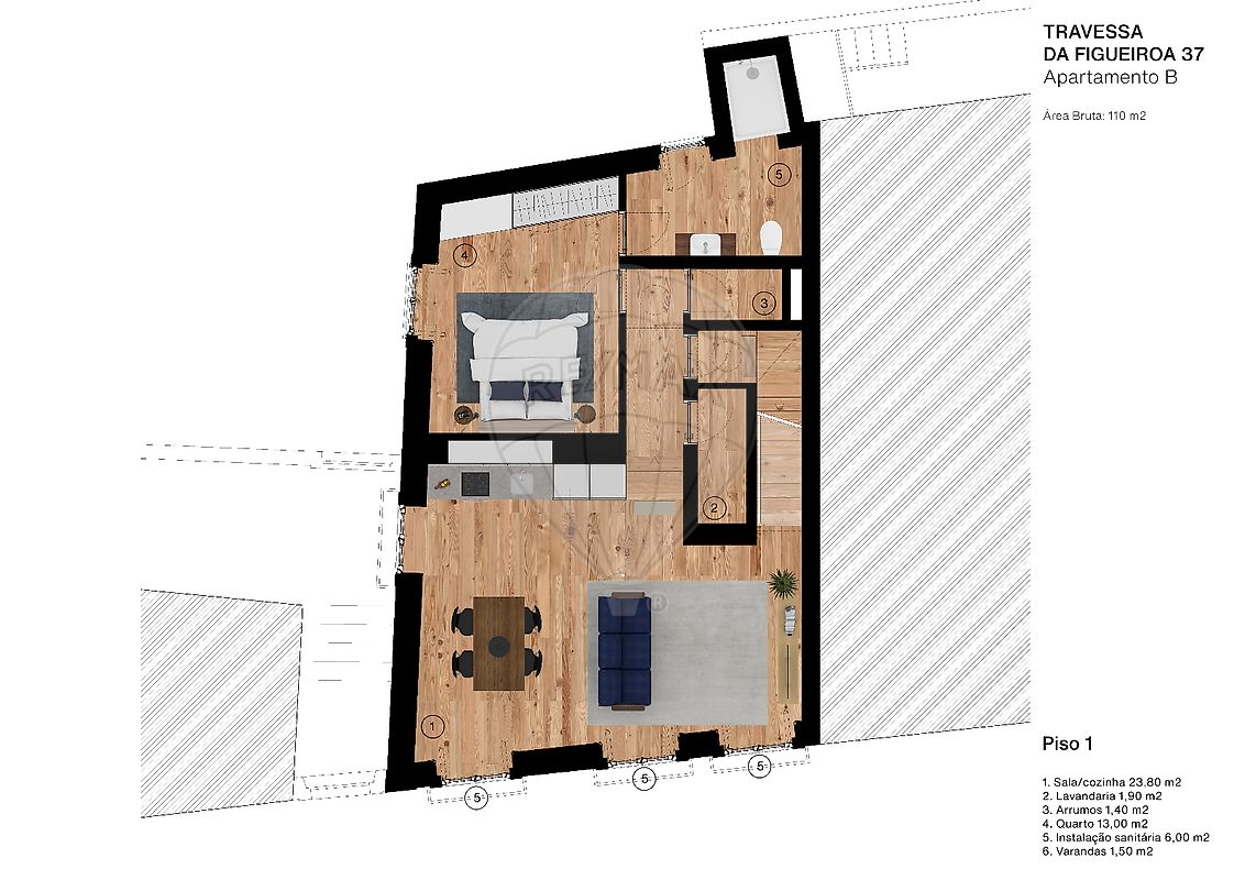
Área bruta privativa: 159,98 m2 


Área útil: 119,98 m2



Descrição das divisões:



  • Ampla Sala comum desnivelada (usufruindo do espantoso pé direito do edifício)

  • Cozinha totalmente equipada com zona de refeições - acesso ao jardim

  • WC de serviço

  • Duas amplas suites com armário embutido (1 suite com varanda)

  • Espaço de serviços para lavandaria


 


O apartamento dispõe de um espaço para arrumos na cave do edifício.



Localização:
Inserido na Travessa da Figueiroa, em Cedofeita, o apartamento está próximo de um sem número de instituições/locais que valorizam o mesmo:

- Igreja de Cedofeita – 220 mts
- Rua de Cedofeita – 60 mts
- Parque de estacionamento publico (aberto 24h) – 160 mts
- Praça da Républica– 470 mts


Transportes e Acessos:



  • Autocarro, nas imediações - Linhas 3M / 202 / 301 / 502.

  • Metro, estação da Lapa – 200 metros

  • Acesso rápido à Autoestrada, nos dois sentidos



Outras características e valências:



  • Caixilharia com vidros duplos de alto desempenho

  • A/C em todas as divisões

  • Pavimento em madeira maciça

  • Porta de Segurança 

  • Eletrodomésticos topo de gama – Marca Siemens


- Certificação energética - Classe B


 


Escrituras previstas para Outubro de 2023


Venha conhecer!


 


Estamos disponíveis para o ajudar a realizar sonhos, seja na compra ou na venda do seu imóvel.


_______________________________________________________


 


Charming T2 Duplex Apartment (with Garden 40 meters) – in Travessa da Figueiroa / Porto – Built in 2023 – next to the Metro (Lapa station)


Inserted in a completely rehabilitated building, designed by the prestigious architecture firm “Pedra Liquida”, in Travessa da Figueiroa (between Rua da Boavista and Rua Alvares Cabral), next to Rua de Cedofeita and 200m from the Metro (Lapa station), provides an environment of extreme comfort in the heart of the city of Porto.


The apartment has 3 fronts – East / West / South


It has a spectacular 40 m2 garden in the building's atrium.


Don't miss the opportunity;
Mark your visit!


 


We're here to help you make your dreams come true, whether you're buying or selling your property.


;ID RE/MAX: 126401033-24

Características

Jardim

Quintal

Cozinha Equipada

Urbano

Construção Nova

Casa Moderna

Localização

Estrada Pavimentada

Estilo Moderno

Primeiro proprietário

Residencial

Centro da Cidade

Saneamento Básico

Electricidade

Gás

Água

Em Construção

Arrecadação

Sistema de Vigilância

Sistema de Segurança

Aquecimento Central

Aquecimento

Vidrado

Casa Multi-andar

Localização

Pontos de Interesse

(Num raio de 2km)

A carregar pontos de interesse...

Ref. Imóvel: 126401033-24

Consultor Responsável

Agent Photo
Mónica Oliveira
Interessado neste Imóvel?

Simulador de Crédito Habitação

Montante do Empréstimo €225.000,00
Taxa (Euribor + Spread) 3.5%
Prestação Mensal: €871,63
Total a Pagar €418.382,24
Total de Juros €193.382,24
Gold Logo

Informações legais

Imóveis em destaque

Descubra as melhores oportunidades do mercado imobiliário português