1. Início
  2. >
  3. Imóveis
  4. >
  5. Loja para venda
fotos: 4
Property image
/
Certificação Energética B

Loja para venda

Almeirim, Santarém

224m²
2
0
325,000 €

Desde 630/mês

Descrição

Arena II


Junto ao edifício ARENA 1, que se encontra em fase de conclusão, está a nascer o edifício ARENA 2, dotado de 2 lojas e 6 apartamentos (tipologia T2) e 2 apartamentos (tipologia T3), com data prevista de término de construção em setembro de 2026.


Localizado em lugar aprazível, junto a uma das zonas mais atrativas da cidade e com acesso facilitado ao comércio, restauração, espaços verdes e rede de transportes.


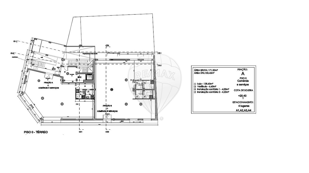
Fração A


Este espaço, totalmente amplo, com 171 m2 de área, com uma frente de dimensões muito generosas, possui uma ótima potencialidade para a criação de loja, restaurante, bar, padaria, café e/ou pastelaria ou para outro tipo de serviços. Está equipada com equipamentos sanitários (Roca).


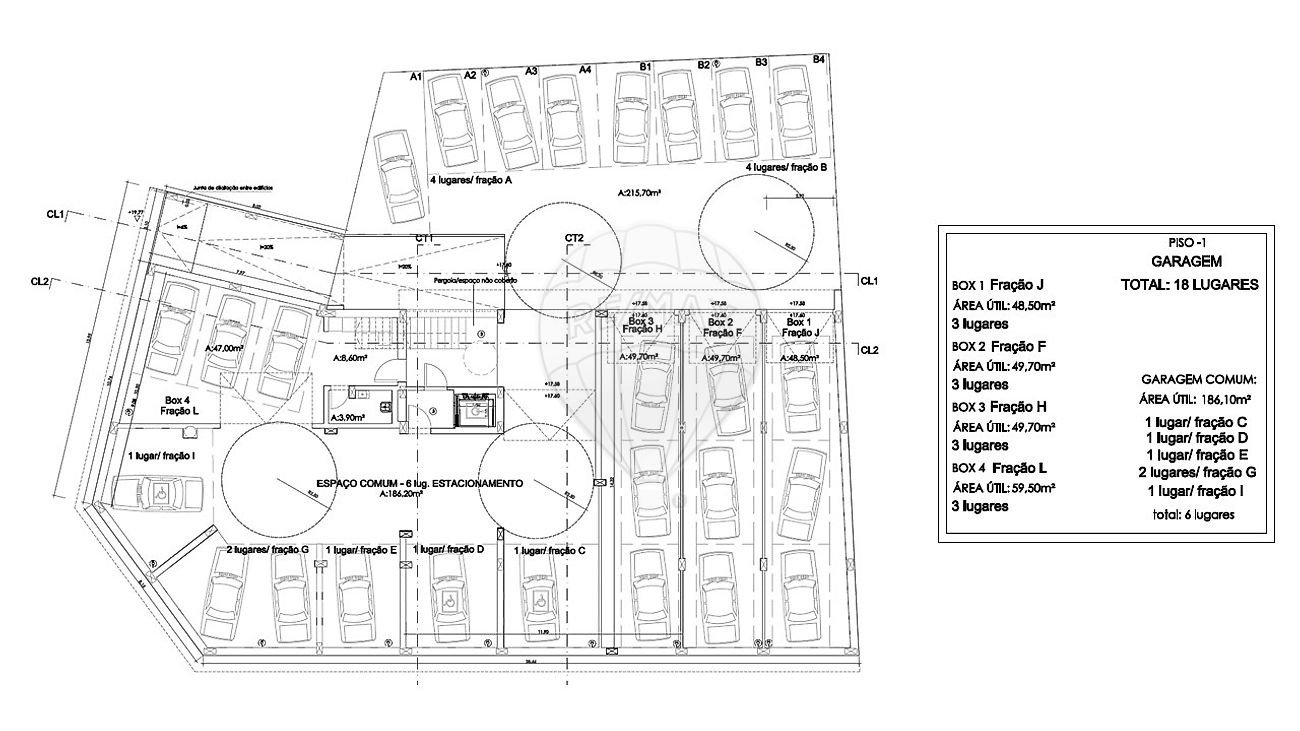
A aquisição da loja terá incluída na cave o estacionamento para 4 viaturas que permitirão servir de suporte para a atividade.


Marque a sua visita. Garanta já o seu lugar.

;ID RE/MAX: 120431390-97

Localização

Pontos de Interesse

(Num raio de 2km)

A carregar pontos de interesse...

Ref. Imóvel: 120431390-97

Consultor Responsável

Agent Photo
Helena Suissas

Vantagem Ribatejo

Interessado neste Imóvel?

Simulador de Crédito Habitação

Montante do Empréstimo €162.500,00
Taxa (Euribor + Spread) 3.5%
Prestação Mensal: €629,51
Total a Pagar €302.164,95
Total de Juros €139.664,95
Gold Logo

Informações legais

Imóveis em destaque

Descubra as melhores oportunidades do mercado imobiliário português