1. Início
  2. >
  3. Imóveis
  4. >
  5. Moradia T2 para venda
fotos: 21
Property image
/
Certificação Energética NC

Moradia T2 para venda

Sintra, Lisboa

108m²
2
2
645,000 €

Desde 1.249/mês

Descrição

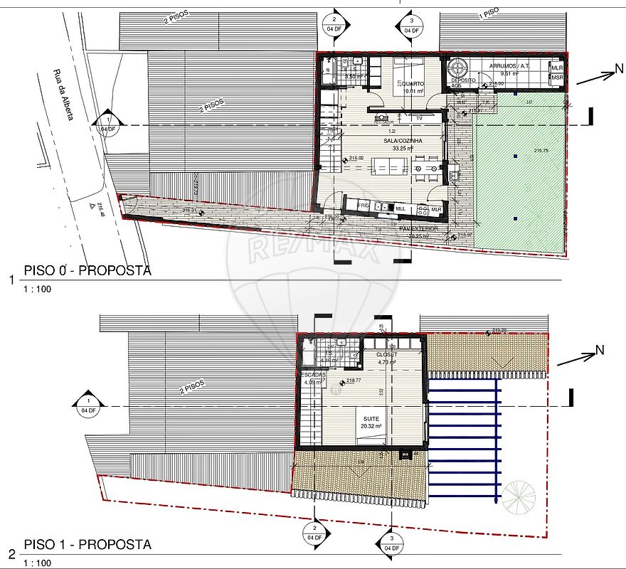
Moradia em construção, sendo o prazo esperado de conclusão Setembro de 2026, antes da finalização da obra, os interessados poderão concluir a mesma com acabamentos personalizados, dentro do projeto aprovado.  


Situado na rua da Alberta nº 25, em Azóia, na Freguesia de Colares, zona muito calma e tranquila. 


A rua da Alberta não é de passagem uma vez que apenas serve as moradias ali existentes. 


Azóia é uma vila do concelho de Sintra no sudoeste do distrito de Lisboa, Portugal. 


Azóia fica a 1 km do Cabo da Roca, tornando-a na vila mais ocidental do continente europeu. 


A Igreja Matriz, a "Igreja de Nossa Senhora da Saúde" ergue-se algo descentralizada na vila. 


Nas imediações podemos visitar algumas das praias mais carismáticas do nosso País, como a famosa Praia da Ursa e a Praia da Adraga, um pouco mais distante temos a Praia das Maçãs e a Praia Grande. 


O referido terreno conta com uma área total de 139m2, sendo a área de implantação de 68,5m2 distribuídos por dois pisos e com área bruta dependente de 14,6m2. 


O projeto contempla a seguinte configuaração, no rés-do-chão podemos encontrar uma sala com lareira e cozinha em open space, um quarto e um wc completo. 


No 1º piso está projetado um quarto em suite com closet, mas devido às áreas bastante nobres, poderá ter dois quartos, tornando a moradia mais apelativa a uma familia maior. 


A zona envolvente é composta maioritariamente por moradias e conta com algum comércio, nomeadamente restauração e alguns minimercados, no entanto, a moradia encontra-se afastada destes serviços e comércio, estando em local bastante sossegado. 


De salientar as vistas deste local, que serão de mar para norte e serra para oeste e sul. Do primeiro andar poderá usufruir de vistas desafogadas. 


Fotos ilustrativas do projeto aprovado.  


;ID RE/MAX: 126341061-89

Localização

Pontos de Interesse

(Num raio de 2km)

A carregar pontos de interesse...

Ref. Imóvel: 126341061-89

Consultor Responsável

Agent Photo
Rui Fernandes

Vantagem Market

Interessado neste Imóvel?

Simulador de Crédito Habitação

Montante do Empréstimo €322.500,00
Taxa (Euribor + Spread) 3.5%
Prestação Mensal: €1.249,34
Total a Pagar €599.681,21
Total de Juros €277.181,21
Gold Logo

Informações legais

Imóveis em destaque

Descubra as melhores oportunidades do mercado imobiliário português