1. Início
  2. >
  3. Imóveis
  4. >
  5. Moradia T3 para venda
fotos: 12
Property image
/
Certificação Energética NC

Moradia T3 para venda

Alenquer, Lisboa

62m²
0
3
165,000 €

Desde 320/mês

Descrição

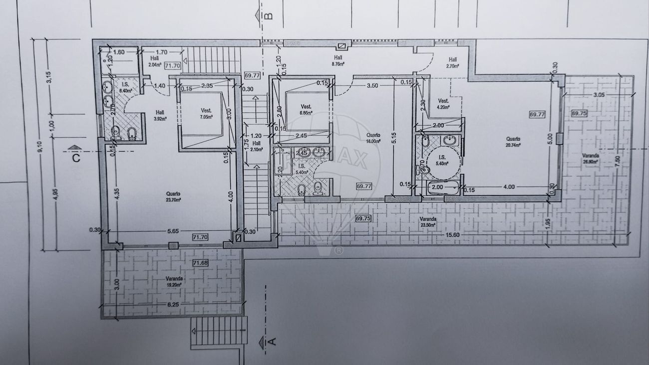
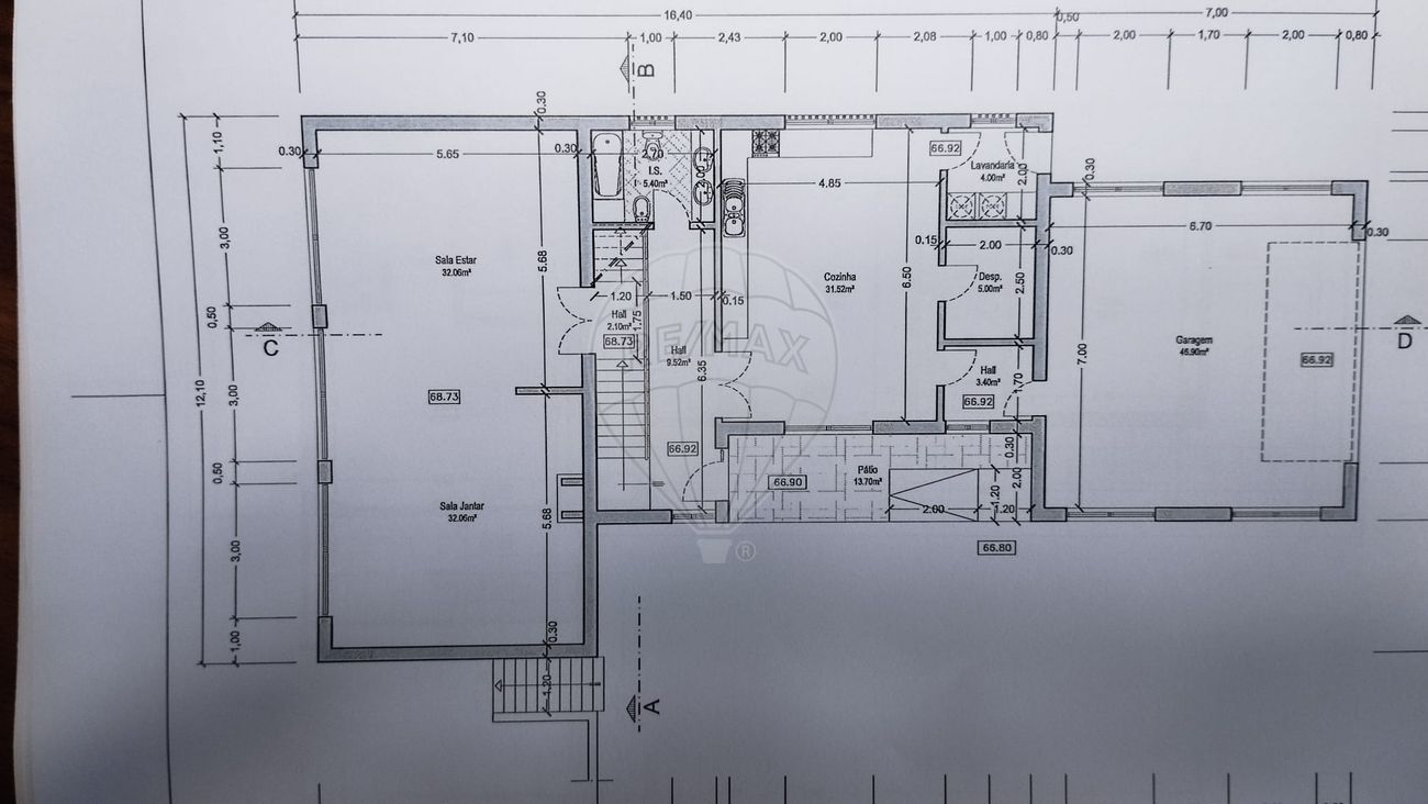
Moradia com Lote de Terreno para reconstruir, Alenquer


 


Lote de terreno com 760 m2 com ruína e projeto aprovado a pagamento para a construção de moradia de linhas modernas com 2 pisos. Área de implantação de 221m2 e área de construção de 441m2.


Situada em Paredes/Alenquer, em local tranquilo, com muita privacidade de mas também com excelente acessibilidade a todo o tipo de comércio e serviços.


Centro escolar de Alenquer e pavilhão desportivo a poucos minutos a pé.


Excelente oportunidade de construir a sua casa de sonho sem passar por todos os constrangimentos burocráticos que um novo projeto sempre acarreta.

;ID RE/MAX: 122601031-1103

Localização

Pontos de Interesse

(Num raio de 2km)

A carregar pontos de interesse...

Ref. Imóvel: 122601031-1103

Interessado neste Imóvel?

Simulador de Crédito Habitação

Montante do Empréstimo €82.500,00
Taxa (Euribor + Spread) 3.5%
Prestação Mensal: €319,60
Total a Pagar €153.406,82
Total de Juros €70.906,82
Gold Logo

Informações legais

Imóveis em destaque

Descubra as melhores oportunidades do mercado imobiliário português