1. Início
  2. >
  3. Imóveis
  4. >
  5. Moradia T3 para venda
Media: 29 fotos
/
Certificação Energética NC

Moradia T3 para venda

Ferreira do Zêzere, Santarém

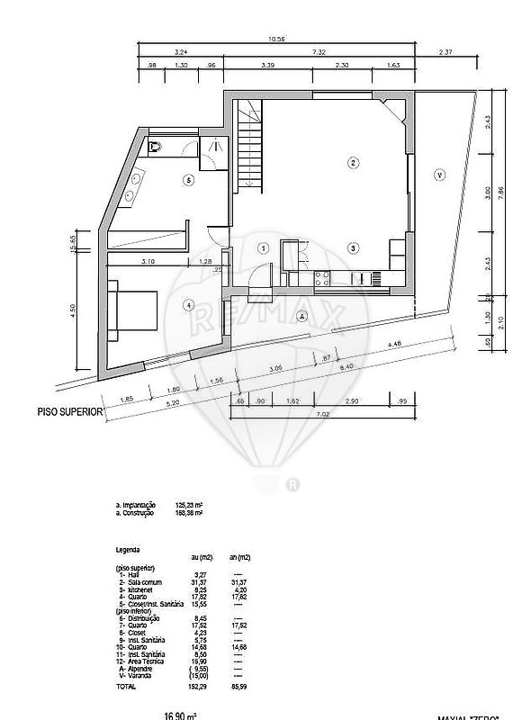
162m²
3
3
160,000 €

Desde 310/mês

Descrição

Ruina para reconstrução - Onde o Azul do Céu Encontra a Serenidade do Castelo de Bode


(Valor não inclui reconstrução)


Apresentamos uma propriedade singular, onde a alma de duas ruínas históricas aguarda para ser reinventada. Com um generoso terreno de 1.200 m², este é o cenário perfeito para edificar a sua moradia de sonho: um refúgio T3, desenhado para o máximo conforto com três suites exclusivas e uma piscina que parece fundir-se com as vistas deslumbrantes sobre o Castelo de Bode.


Privilégio e Exclusividade


Numa localização onde o único som é o canto dos pássaros e o sussurro da brisa, este projeto já conta com Aprovação Camarária e Licença de Construção. Num momento em que as novas regras do PDM tornam a construção junto à margem (num raio de 500m) um privilégio raro e restrito, a Aldeias Xarm oferece-lhe a chave para garantir o seu lugar na primeira linha da natureza.


A apenas dois passos do icónico Lago Azul, esta não é apenas uma transação imobiliária; é o primeiro passo para uma vida de paz, rodeada pela beleza crua e magnética de um dos tesouros mais bem guardados de Portugal.


Desperte os seus sentidos. Construa o seu legado.


Contacte-me para descobrir como transformar esta visão na sua realidade.


;ID RE/MAX: 126261048-88

Características

Vistas Exteriores

Varanda

Terraço

Jardim

Cozinha Equipada

Janela Panorâmica

Piscina exterior

Lareira

Casa de Campo

Localização Isolada

Perto de Mar

Praia

Campo

Localização

Pontos de Interesse

(Num raio de 2km)

A carregar pontos de interesse...

Ref. Imóvel: 126261048-88

Consultor Responsável

Agent Photo
Margarida Reis

Collection Vantagem Villa

Interessado neste Imóvel?

Simulador de Crédito Habitação

Montante do Empréstimo €80.000,00
Taxa (Euribor + Spread) 3.5%
Prestação Mensal: €309,91
Total a Pagar €148.758,13
Total de Juros €68.758,13
Gold Logo

Informações legais

Imóveis em destaque

Descubra as melhores oportunidades do mercado imobiliário português