1. Início
  2. >
  3. Imóveis
  4. >
  5. Moradia T4 para venda
Media: 37 fotos
/
Certificação Energética C

Moradia T4 para venda

Porto, Porto

170m²
2
4
630,000 €
Novidade

Desde 1.220/mês

Descrição

MORADIA T4+1 RENOVADA com 3 frentes, 2 varandas, garagem fechada e logradouro, em Campanhã, Porto


Localização e envolvente:


Localizado na Campanhã, Porto, em zona de habitação unifamiliar. Junto aos principais acessos à VCI.


Na envolvente existe oferta de serviços e transportes públicos (metro, comboio e autocarros).


Principais características:


- Moradia Renovada (2025)


- Tipologia T4 + quarto/escritório no piso 0


- 3 pisos


- 3 frentes (orientação nascente/sul/poente)


- suite


- logradouro


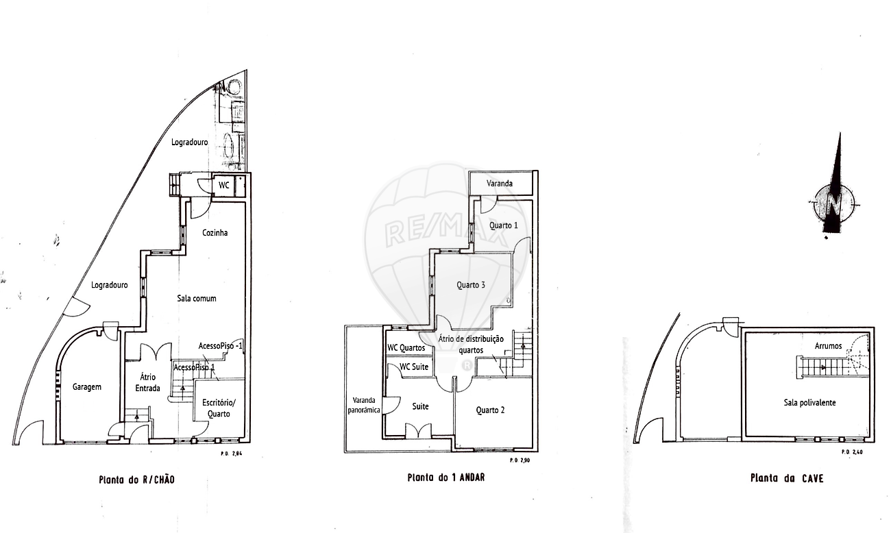
Piso 0 (zona social):


- átrio de entrada (13,80m2) com distribuição para a garagem, sala comum, escritório e escadaria de acesso ao piso 1


- sala comum em open space com a cozinha (27,00m2), equipada com placa de indução (AEG), forno (TEKA), microondas (TEKA), exaustor (BEKO), frigorífico (BOSCH) e máquina de lavar louça (BOSCH), com acesso ao logradouro


- escritório/quarto (7,50m2) com armário embutido


- escadaria de acesso ao Piso -1


- escadaria de acesso ao Piso 1


- garagem fechada (13,80m2)


- instalação sanitária de serviço com lavatório, sanita / lavandaria


Piso 1 (zona privada):


- átrio de distribuição (17,30m2) dos quartos


- quarto (8,00m2) com armário embutido e com acesso a uma varanda


- varanda


- quarto (17,00m2) com armário embutido


- quarto (15,40m2) com armário embutido


- instalação sanitária (3,20m2) de apoio aos quartos com lavatório com móvel inferior, sanita e base de duche


- suite (10,50m2) com acesso a uma varanda panorâmica e instalação sanitária (2,80m2) com lavatório com móvel inferior, sanita e base de duche


- varanda panorâmica


Piso -1:


- cave com divisão para arrumos


Outras características e valências:


- zona social e privada com pavimento vinílico


- cave com pavimento cerâmico


- instalações sanitárias com pavimento e revestimento cerâmico


- zona privada com tecto falso com focos embutidos


- todas as divisões revestidas a pladur


- cozinha com balcão em pedra natural (Granito)


- caixilharias em PVC oscilobatentes com vidro triplo


- instalação sanitária de apoio aos quartos com iluminação e ventilação natural


- cave com iluminação e ventilação natural


- bomba de calor (300L)


- garagem fechada com portão automático


- pré-instalação de ar condicionado


- estores elétricos


- instalação elétrica nova, com quadros independentes por piso


- videoporteiro


Pontos de interesse:


- a 400m do Continente


- a 850m do Shopping Parque Nascente


- a 900m do Mercadona


- a 1,1km do Mercado Abastecedor


- a 1,3km do Fitness Hut Antas


- a 1,3km do Estádio do Dragão


- a 1,4km do Shopping Alameda


- a 1,4km do Parque Urbano de Rio Tinto


- a 1,6km da Escola Nicolau Nasoni


- a 1,6km do Parque Oriental da Cidade do Porto


Transportes e acessos:


- a 50m do autocarro/bus


- a 120m da N12 (Estrada da Circunvalação)


- a 850m do metro (Estação Contumil)


- a 1,1km do acesso à A20/VCI


- a 1,6km do acesso à A43


- a 1,6m do metro (Estação Nasoni)


- a 2,3km do comboio (Estação Contumil)


- a 2,6km do acesso à A3


- a 2,9km do metro (Estação Campanhã)


- a 3,1km do comboio (Estação Campanhã)


- a 4,1km da Ponte do Freixo


- a 4,8km da N14 (Via Norte)


- a 6,7km do acesso à A28


- a 15,6km do Aeroporto Francisco Sá Carneiro


Áreas (de acordo com a Caderneta Predial Urbana):


- Área total do terreno: 115,0000 m² 


- Área de implantação do edifício: 90,0000 m² 


- Área bruta de construção: 190,0000 m² 


- Área bruta dependente: 20,0000 m² 


- Área bruta privativa: 170,0000 m²


Outros valores:


- Valor do Condomínio: não se aplica


- Valor do IMI: aprox. 210,60€ (anual)


Nota: para maior facilidade na identificação deste imóvel, por favor, refira o respectivo ID. Em caso de agendamento de visita, faça-se acompanhar de um documento de identificação. Muito obrigado!


***


;ID RE/MAX: 126401038-270

Localização

Pontos de Interesse

(Num raio de 2km)

A carregar pontos de interesse...

Ref. Imóvel: 126401038-270

Consultor Responsável

Agent Photo
Cristina Miranda
Interessado neste Imóvel?

Simulador de Crédito Habitação

Montante do Empréstimo €315.000,00
Taxa (Euribor + Spread) 3.5%
Prestação Mensal: €1.220,28
Total a Pagar €585.735,13
Total de Juros €270.735,13
Gold Logo

Informações legais

Imóveis em destaque

Descubra as melhores oportunidades do mercado imobiliário português