1. Início
  2. >
  3. Imóveis
  4. >
  5. Prédio para venda
fotos: 26
Property image
/
Certificação Energética F

Prédio para venda

Barreiro, Setúbal

393m²
0
0
395,000 €

Desde 765/mês

Descrição

Prédio com projeto aprovado para reabilitação na zona ribeirinha do Barreiro


Situado no coração do centro histórico do Barreiro, este edifício em propriedade total encontra-se com projeto de arquitetura aprovado de reconstrução e ampliação.  


Atualmente, o prédio constituído em regime de propriedade total, está localizado na Rua Marquês de Pombal 76 e na Rua Conselheiro Joaquim António Aguiar, 93, 95, 97, e é composto por dois edifícios contíguos de construção tradicional com acessos por ruas diferentes, sendo que tem 2 pisos de um lado e apenas 1 piso do outro. 


Ambos possuem acesso a sótão, cobertura de quatro águas em telha cerâmica e revestimento de azulejo nas fachadas. O edifício encontra-se devoluto e mau estado de conservação, no piso 0 chegou a funcionar uma loja e respetivos arrumos, bem como uma garagem. No piso 1 uma habitação de tipologia T2, e aproveitamento dos sótãos para arrumos. 


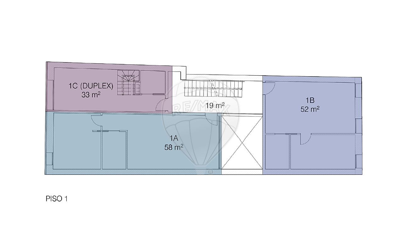
O projeto de arquitetura aprovado contempla a junção dos dois blocos existentes e contíguos, num único edifício de habitação coletiva, sendo dividido em 7 apartamentos de tipologia T1 com uma área bruta de construção prevista de 486 m2. A organização espacial prevê a criação de um pátio interior, garantindo luz natural para os apartamentos bem como para áreas comuns do prédio. 


Dados principais:



  • Edifício com 267 m2 ABC e 175 área implantação

  • Projeto com 486 m2 ABC e 163 área implantação 

  • Atualmente com 2 pisos, projeto com 3 pisos 

  • Projeto para 7 apartamentos T1 com áreas entre 50 m2 e 70 m2 

  • Um dos apartamentos T1 será duplex 


Localizado em plena zona ribeirinha do Barreiro, uma zona bem servida por transportes públicos, comércio local, cafés e restaurantes típicos. A proximidade ao rio Tejo proporciona uma qualidade de vida invejável. Com ligação fluvial direta a Lisboa através do terminal Rodo-Ferro-Fluvial, é o cenário perfeito para quem procura investir fora da capital, mas com toda a conveniência de acesso rápido e cómodo. 


Para mais informações contacte-me.  


;ID RE/MAX: 120261777-70

Localização

Pontos de Interesse

(Num raio de 2km)

A carregar pontos de interesse...

Ref. Imóvel: 120261777-70

Interessado neste Imóvel?

Simulador de Crédito Habitação

Montante do Empréstimo €197.500,00
Taxa (Euribor + Spread) 3.5%
Prestação Mensal: €765,10
Total a Pagar €367.246,63
Total de Juros €169.746,63
Gold Logo

Informações legais

Imóveis em destaque

Descubra as melhores oportunidades do mercado imobiliário português