1. Início
  2. >
  3. Imóveis
  4. >
  5. Prédio para venda
fotos: 27
Property image
/
Certificação Energética NC

Prédio para venda

Lisboa, Lisboa

4345.56m²
0
0
2,750,000 €

Desde 5.327/mês

Descrição

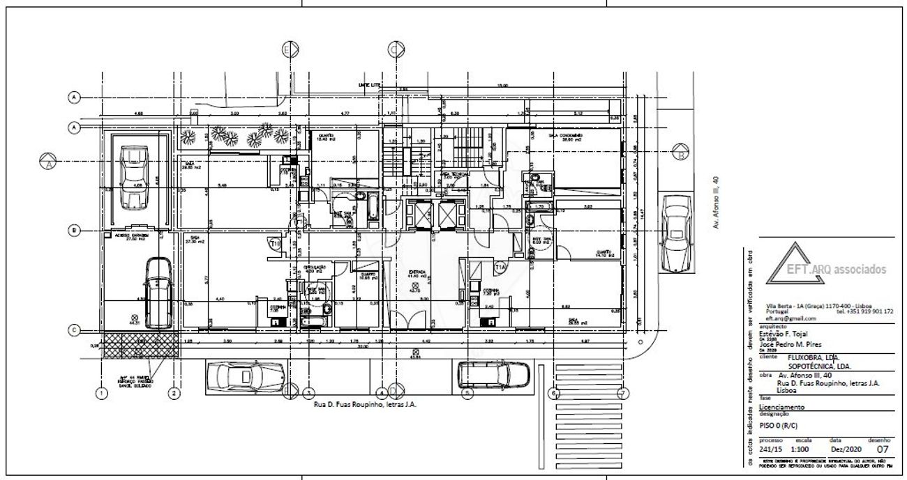
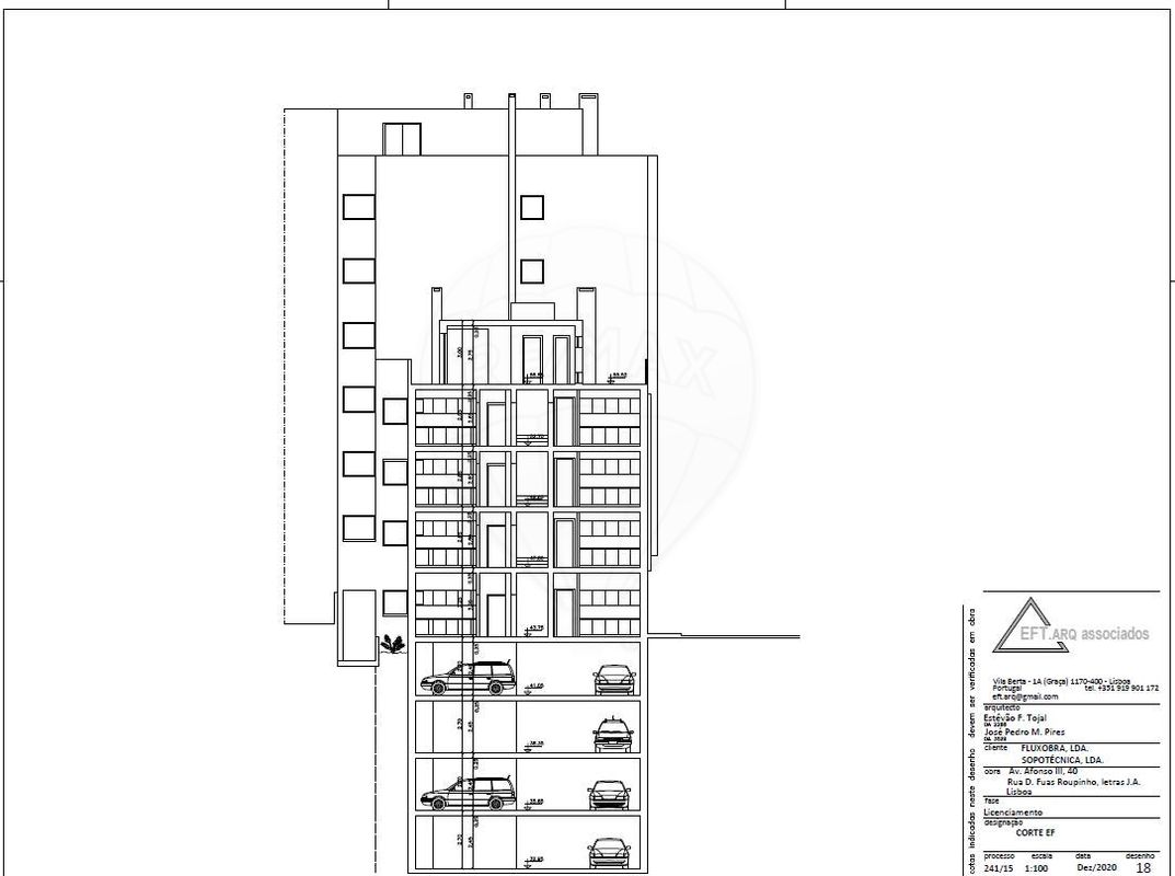
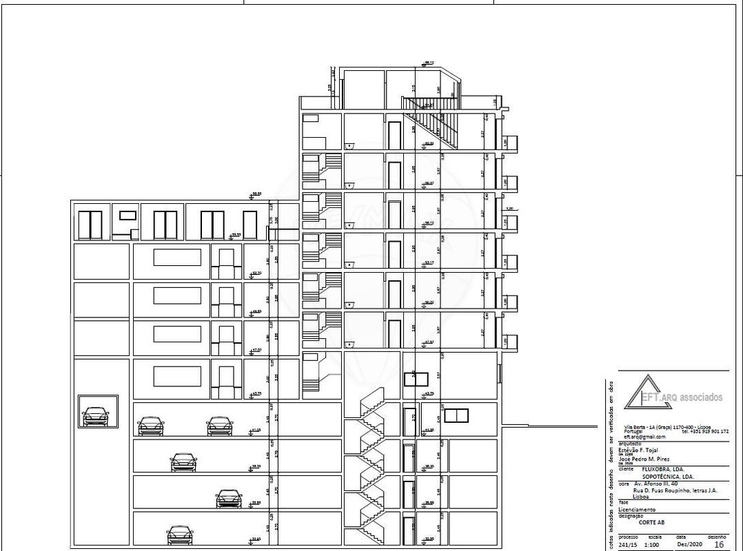
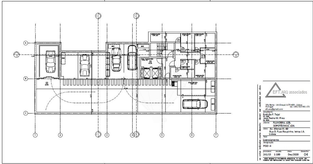
Prédio para venda com projeto de arquitetura aprovado pela CML para construção de edifício residencial com 25 apartamentos de T0 a T3+1 Duplex num total de 4345 m2 de construção (sendo 2617,56m2 acima do solo e 1728m2 abaixo do solo), na Penha de França, em Lisboa. Os apartamentos previstos no projeto têm vistas panorâmicas para o Rio Tejo.


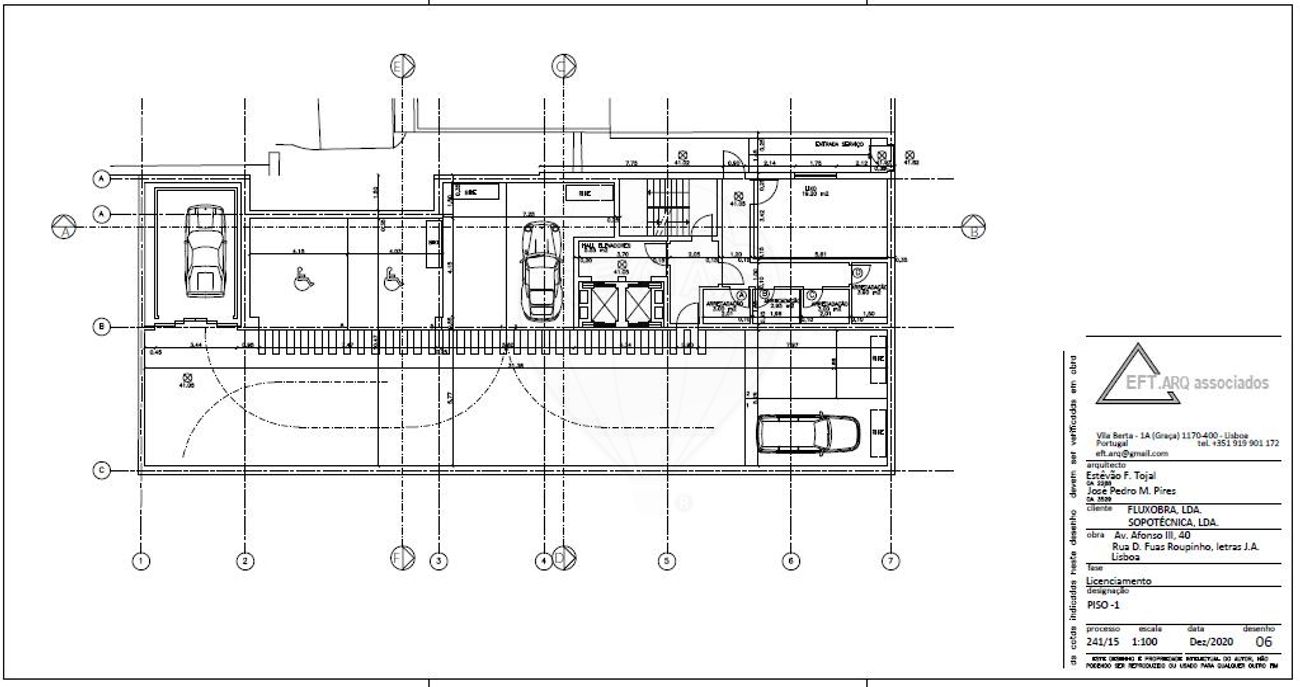
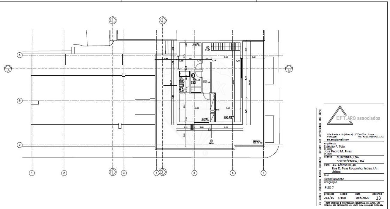
O projeto é para um prédio de 7 andares para cima e 4 para baixo para garagens, arrecadações e inclui elevador.


O edifício, no projeto aprovado, será organizado do seguinte modo:


Caves:


- Estacionamento – 27 lugares


- Arrecadações - 25


- Compartimento do lixo


Pisos:


- Piso 0 – 1 fogo T0, 2 fogos T1 e Sala de Condomínio


- Piso 1 – 4 fogos T1 e 1 fogo T2


- Piso 2 – 4 fogos T1 e 1 fogo T2


- Piso 3 – 4 fogos T1 e 1 fogo T2


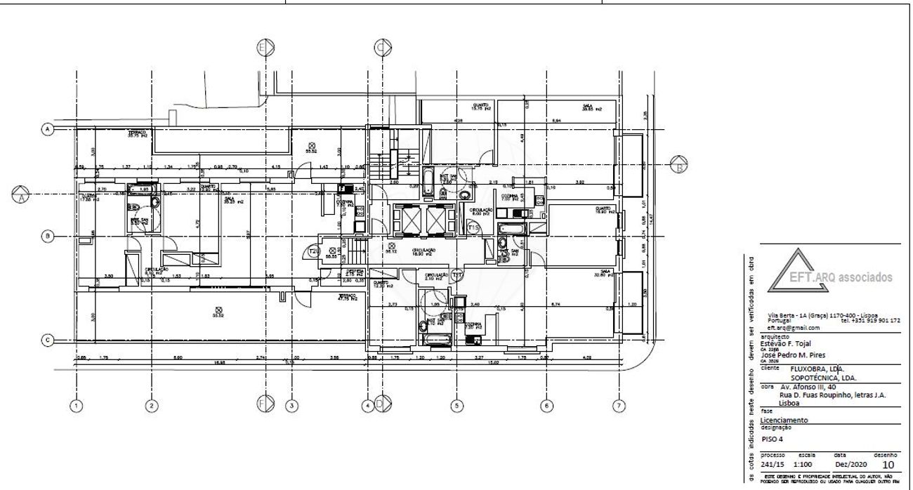
- Piso 4 – 1 fogo T1 e 2 fogos T2+1


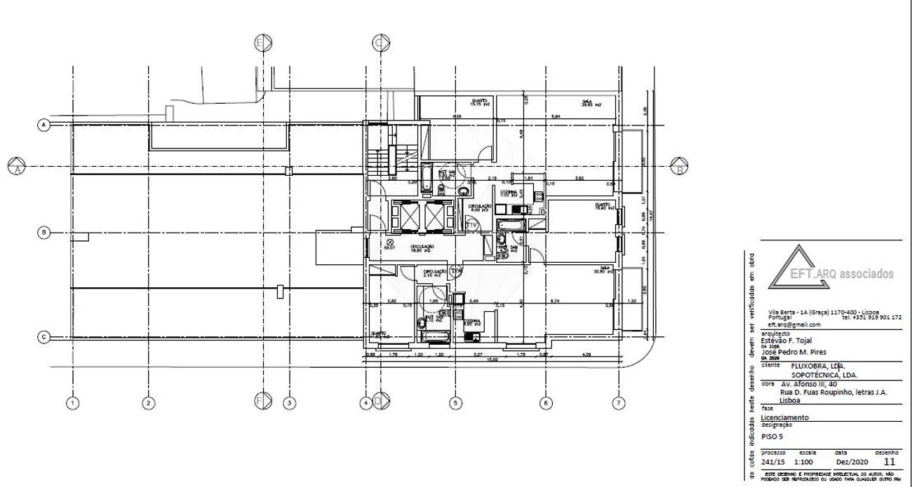
- Piso 5 – 1 fogo T1 e 1 fogo T2


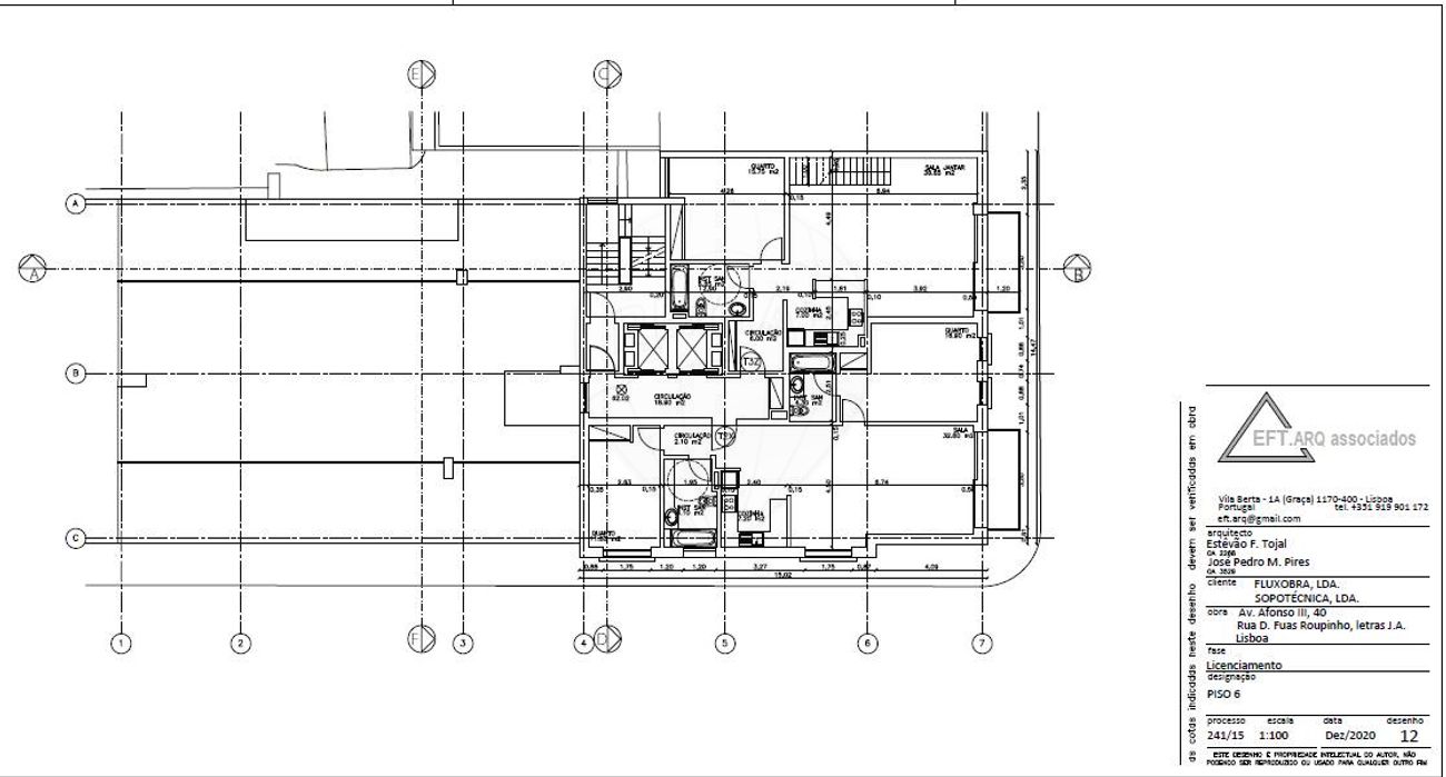
- Piso 6 – 1 fogo T2


- Piso 6 e 7 – 1 fogo T3+1 em duplex


Total de 25 fogos, dos quais 1 duplex (com o piso 7 - recuado), distribuídos pelas seguintes tipologias: 1 T0, 16 T1, 7 T2 e 1 T3.


A sua localização, na Penha de França, na Avenida Afonso III, torna este produto num investimento imbativel, dado ser uma zona de forte expansão urbana e segura valorização.


;ID RE/MAX: 126261048-65

Localização

Pontos de Interesse

(Num raio de 2km)

A carregar pontos de interesse...

Ref. Imóvel: 126261048-65

Consultor Responsável

Agent Photo
Margarida Reis

Collection Vantagem Villa

Interessado neste Imóvel?

Simulador de Crédito Habitação

Montante do Empréstimo €1.375.000,00
Taxa (Euribor + Spread) 3.5%
Prestação Mensal: €5.326,63
Total a Pagar €2.556.780,34
Total de Juros €1.181.780,34
Gold Logo

Informações legais

Imóveis em destaque

Descubra as melhores oportunidades do mercado imobiliário português