1. Início
  2. >
  3. Imóveis
  4. >
  5. Terreno para venda
fotos: 26
Property image
/
Certificação Energética NC

Terreno para venda

Cartaxo, Santarém

0
0
410,000 €

Desde 794/mês

Descrição

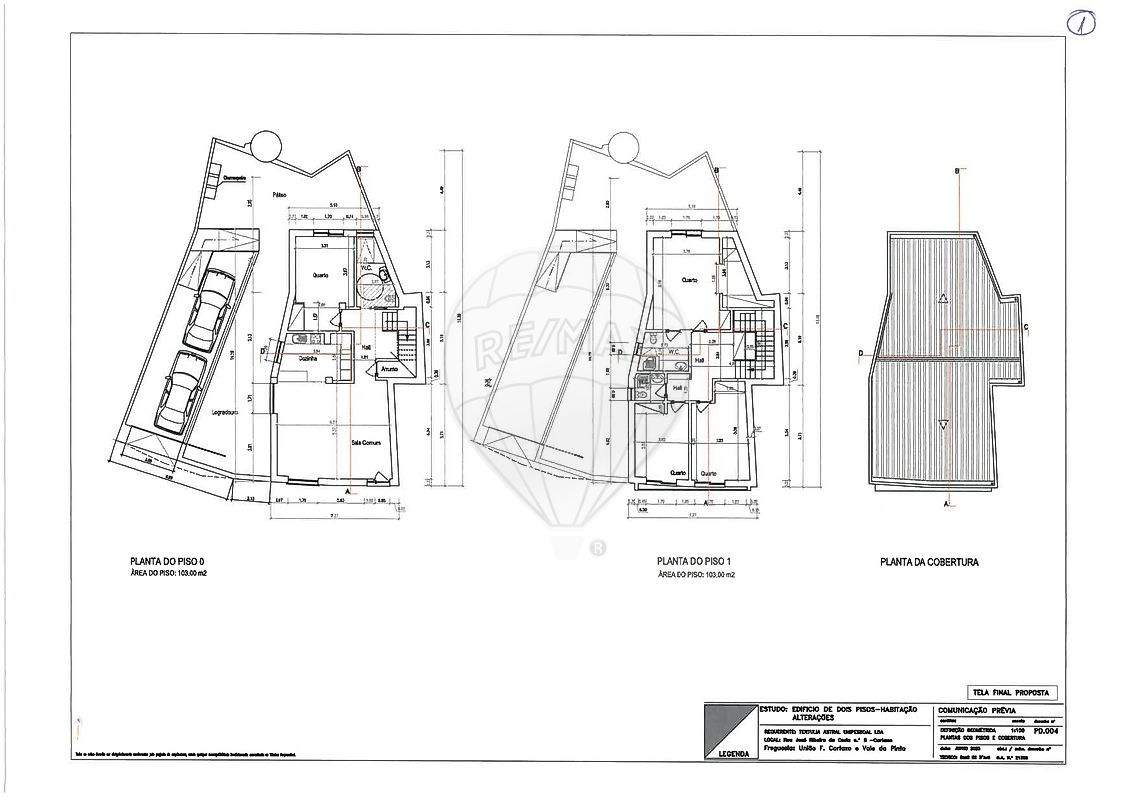
Terreno urbano para venda com projecto


Deseja construir uma moradia? Se tem esse sonho é possivel realizá-lo neste terreno com uma localização estratégica (no centro da cidade do Cartaxo).


Tem projecto entregue na Câmara para moradia T4. Já existe estrutura em betão e a licença de construção será entregue em Janeiro de 2026. 


Lote com 227,73 m2, área de cnstrução - 203,20 m2


Venha conhecer!                                                                                                                          


;ID RE/MAX: 120431199-520

Localização

Pontos de Interesse

(Num raio de 2km)

A carregar pontos de interesse...

Ref. Imóvel: 120431199-520

Consultor Responsável

Agent Photo
Cristina Alvaneo
Interessado neste Imóvel?

Simulador de Crédito Habitação

Montante do Empréstimo €205.000,00
Taxa (Euribor + Spread) 3.5%
Prestação Mensal: €794,15
Total a Pagar €381.192,71
Total de Juros €176.192,71
Gold Logo

Informações legais

Imóveis em destaque

Descubra as melhores oportunidades do mercado imobiliário português