1. Início
  2. >
  3. Imóveis
  4. >
  5. Terreno para venda
Media: 13 fotos
/
Certificação Energética NC

Terreno para venda

Torres Vedras, Lisboa

0
0
198,000 €

Desde 384/mês

Descrição

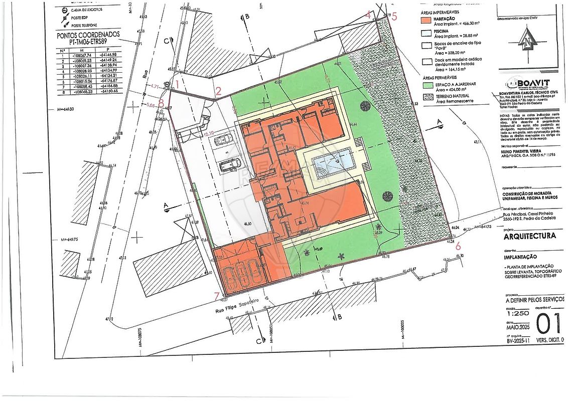
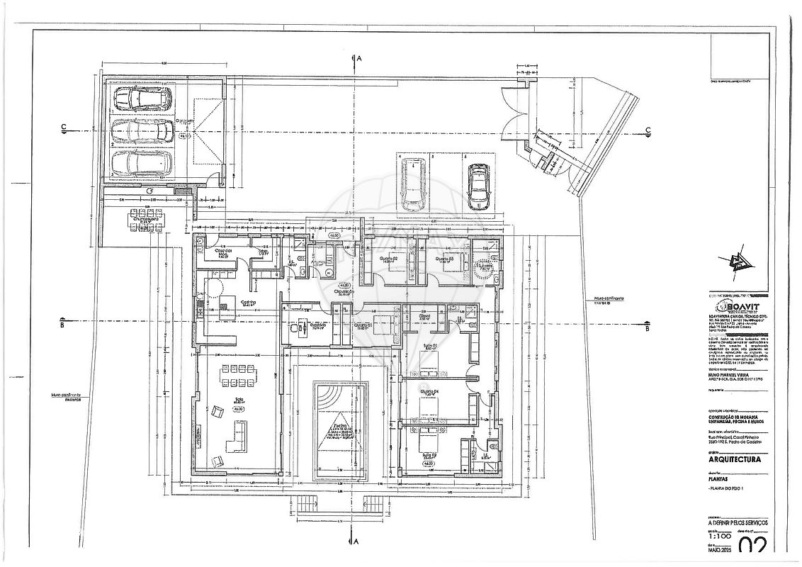
Lote Plano, com 1.900m2, PROJECTO APROVADO para moradia TÉRREA, Contemporânea, com formato em U, PISCINA ao Centro e GARAGEM para 3 carros.


É da salientar a VISTA Desafogada, a proximidade à ERICEIRA, sendo que a Praia + próxima situa-se a 5 minutos.


Um Lote com uma Área acima da média, que lhe permite iniciar Praticamente de Imediato a Construção desta Fabulosa moradia.


Trata-se de uma Moradia T6 + 1, composta por 2 Suites, 4 Quartos, 1 Escritório; 


Caso não necessite de tantos quartos, poderá facilmente unir 2 e transformar numa Master Suite.


Contacte-me, Conheça o Projecto e Inicie esta Casa de Sonho!


;ID RE/MAX: 121901124-1532

Localização

Pontos de Interesse

(Num raio de 2km)

A carregar pontos de interesse...

Ref. Imóvel: 121901124-1532

Consultor Responsável

Agent Photo
Gonçalo Costa
Interessado neste Imóvel?

Simulador de Crédito Habitação

Montante do Empréstimo €99.000,00
Taxa (Euribor + Spread) 3.5%
Prestação Mensal: €383,52
Total a Pagar €184.088,18
Total de Juros €85.088,18
Gold Logo

Informações legais

Imóveis em destaque

Descubra as melhores oportunidades do mercado imobiliário português