1. Início
  2. >
  3. Imóveis
  4. >
  5. Terreno para venda
Media: 14 fotos
/
Certificação Energética NC

Terreno para venda

Espinho, Aveiro

0m²
0
0
610,000 €
Baixa de Preço

Desde 1.182/mês

Descrição

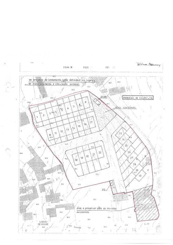
Terreno para venda em Silvalde/Espinho


 Oportunidade Venda de terreno
urbanizável com 10.760 m², na Rua de Gulhe em Silvalde/Espinho.


 


Este texto apresenta uma excelente oportunidade de investimento em um terreno urbanizável localizado em uma área privilegiada, próxima à Cidade de Espinho e suas belas praias. Aqui estão alguns pontos destacados:



1. **Localização Estratégica**: A poucos minutos das praias e com fácil acesso a diversos serviços, como supermercados, hospitais e restaurantes, o que torna a área atrativa tanto para moradores quanto para investidores.



2. **Potencial de Valorização**: O terreno permite a construção de 28 moradias modernas, o que pode resultar em um retorno significativo, especialmente considerando o crescimento da zona.



3. **Acessos Rápidos**: A proximidade com as principais vias A1 e A29 facilita o deslocamento, aumentando ainda mais a atratividade do local.



4. **Oportunidade para Investidores**: Ideal para aqueles que buscam um projeto residencial exclusivo, com grande potencial de valorização e fácil acesso.



Se precisar de mais informações ou desejar agendar uma visita, não hesite em entrar em contato!


Estamos disponíveis para ajudar a realizar sonhos seja compra ou venda do seu imóvel 







 


;ID RE/MAX: 124881063-186

Localização

Pontos de Interesse

(Num raio de 2km)

A carregar pontos de interesse...

Ref. Imóvel: 124881063-186

Consultor Responsável

Agent Photo
Luís Oliveira

Vantagem Litoral

Interessado neste Imóvel?

Simulador de Crédito Habitação

Montante do Empréstimo €305.000,00
Taxa (Euribor + Spread) 3.5%
Prestação Mensal: €1.181,54
Total a Pagar €567.140,37
Total de Juros €262.140,37
Gold Logo

Informações legais

Imóveis em destaque

Descubra as melhores oportunidades do mercado imobiliário português