1. Início
  2. >
  3. Imóveis
  4. >
  5. Terreno para venda
Media: 31 fotos
/
Certificação Energética NC

Terreno para venda

Sintra, Lisboa

234m²
2
3
425,000 €

Desde 823/mês

Descrição

VEJA O VIDEO


Terreno para construção de moradia no Alto de Galamares – Um Refúgio com Vista Mar e Serra em Sintra 


Com Projeto Aprovado, licenças a pagamento, esta moradia prevê uma área bruta de construção de 234m2.


No alto de Galamares, às portas de Colares e em pleno Parque Natural de Sintra-Cascais, nasce um projeto de arquitetura que é simultaneamente casa, refúgio e manifesto de uma nova forma de habitar. Com vista privilegiada sobre o vale e o oceano Atlântico, este lote de terreno com 1.080 m² inclui um projeto aprovado para a construção de uma moradia T3, com 234 m² de área bruta, que se insere de forma harmoniosa na paisagem envolvente. 


O desenho arquitetónico, assinado pelo atelier Studio LPP, foi pensado para acolher uma família em busca de qualidade de vida, funcionalidade e beleza. O projeto propõe uma vivência fluida entre interior e exterior, com uma linguagem contemporânea e enraizada no território, respeitando princípios de sustentabilidade e conexão com a natureza. 


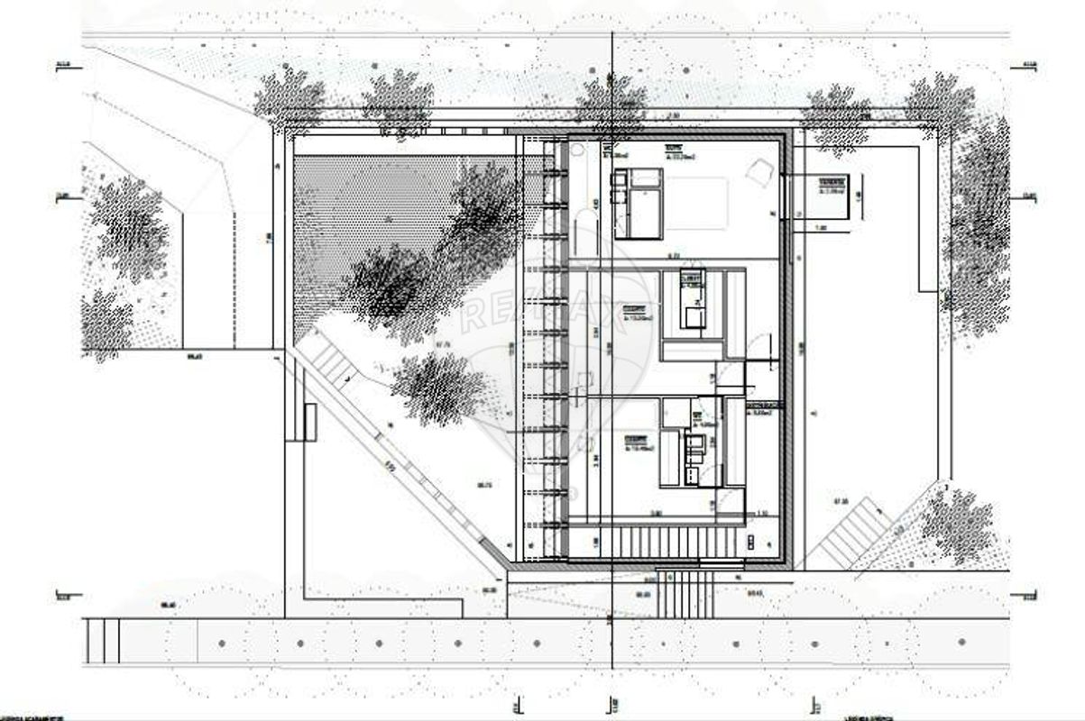
À chegada, somos recebidos por um generoso pátio, que funciona como elemento central de distribuição, a partir do qual se desenvolvem os restantes espaços sociais e
privados da casa. No piso térreo, através de desníveis suaves e meio piso, encontra-se a sala de estar com duplo pé-direito – o coração da casa –, em articulação com a cozinha e o escritório. Todos estes espaços beneficiam de luz natural abundante e ligação visual ou direta ao exterior, favorecendo uma vivência integrada com o jardim, a piscina, o tanque de água e a horta. Ainda neste piso, existe uma zona de entrada com vestíbulo, hall e uma instalação sanitária de apoio. 


O piso superior é dedicado à zona privada da casa, com três quartos orientados para a Serra de Sintra, o Palácio da Pena e o Castelo dos Mouros. A suite principal dispõe de
casa de banho privativa, closet e vãos orientados a nascente e poente, permitindo desfrutar da luz natural ao longo do dia e de uma vista desafogada sobre o vale. Os restantes dois quartos e a casa de banho partilhada completam esta área, oferecendo conforto, funcionalidade e vistas singulares sobre o Monte da Lua. 


No piso inferior, encontra-se uma sala multiusos, lavandaria, área técnica, arrumos, instalação sanitária e um segundo pátio, que assegura entrada de luz natural e ventilação cruzada.  


A moradia conta ainda com estacionamento privativo para três viaturas e, pela sua implantação no território, beneficia da melhor orientação solar – nascente, sul e poente.
Desenvolvido com soluções passivas e baseado em princípios de sustentabilidade, este projeto promove uma vivência eficiente, confortável e em harmonia com a envolvente natural. 


A localização oferece o equilíbrio ideal entre tranquilidade e acessibilidade, permitindo
viver no campo sem abdicar da proximidade urbana. Situa-se a 8 minutos da Vila de Sintra, a 10 minutos da Praia Grande e a 12 minutos da Praia das Maçãs e das Azenhas do Mar. Nas imediações encontram-se ainda diversos serviços, comércio local e, a apenas 15 minutos de distância, as prestigiadas escolas internacionais TASIS e CAISL. O Aeroporto Internacional de Lisboa fica a cerca de 35 minutos, garantindo excelente conectividade nacional e internacional. 


Mais do que uma casa, este projeto representa uma proposta de vida. Um lugar onde o tempo abranda, onde é possível trabalhar, criar memórias em família e viver em harmonia com a natureza. Aqui, entre a serra e o mar, entre a arquitetura e o silêncio, constrói-se um futuro com alma. As fotos disponibilizadas são do projecto de arquitectura.


WATCH VIDEO


Plot for Housing Construction in Alto de Galamares – A Refuge with Sea and Mountain Views, in the Heart of Sintra

With an Approved Project and licenses pending payment, this house has a planned gross construction area of 234 sqm. 


At the top of Galamares, near Colares and right in the heart of the Sintra-Cascais Natural Park, a unique architectural project is born at once a house, a refuge, and a manifesto for a new way of living. With privileged views over the valley and the Atlantic Ocean, this 1,080 m² plot includes an approved project for the construction of a 3-bedroom house (T3), with a gross building area of 234 m², harmoniously integrated into thesurrounding landscape. 


The architectural design, by Studio LPP, was conceived to accommodate a family seeking quality of life, functionality, and beauty. The project proposes a fluid living experience between indoor and outdoor spaces, with a contemporary language rooted in the territory, respecting sustainability principles and a strong connection with nature. 


Upon arrival, one is welcomed by a generous courtyard, functioning as the central distribution space from which the remaining social and private areas unfold. On the ground floor, through gentle level changes and a mezzanine, there is the double-height living room—the heart of the home—connected to the kitchen and office. All these spaces benefit from abundant natural light and direct or visual connection to the outdoors, encouraging integrated living with the garden, swimming pool, water tank, and vegetable garden. Also on this floor, there is an entrance area with a vestibule, hall, and a guest bathroom. 


The upper floor is dedicated to the private area of the house, with three bedrooms facing the Serra de Sintra, Palácio da Pena, and Castelo dos Mouros. The master suite includes a private bathroom, walk-in closet, and windows facing east and west, allowing for natural light throughout the day and open views over the valley. The two additional bedrooms and shared bathroom complete this level, offering comfort, functionality, and unique views over the Monte da Lua. 


The lower floor includes a multipurpose room, laundry, technical area, storage, bathroom, and a second courtyard that provides natural light and cross-ventilation. 


The house also includes private parking for three vehicles and, thanks to its positioning on the site, benefits from optimal solar exposure—east, south, and west. Developed with passive design solutions and based on sustainable principles, the project promotes efficient, comfortable living in harmony with the natural surroundings. 


The location offers the ideal balance between tranquility and accessibility, allowing for a countryside lifestyle without giving up urban proximity. It is located 8 minutes from Sintra's historic center, 10 minutes from Praia Grande, and 12 minutes from Praia das Maçãs and Azenhas do Mar. Nearby are a variety of services, local shops, and, just 15
minutes away, the prestigious international schools TASIS and CAISL. Lisbon
International Airport is about 35 minutes away, ensuring excellent national and
international connectivity. 


More than just a house, this project represents a life proposal. A place where time slows down, where one can work, build family memories, and live in harmony with nature. Here, between the mountains and the sea, between architecture and silence, a soulful future is built. The images shared are from the arquitecture project.


;ID RE/MAX: 126261044-81

Características

Construção Nova

Acesso para cargas e descargas

Viabilidade Construção

Moradia

Vistas Exteriores

Estilo Moderno

Urbano

Perto de Escola(s)

Perto de Floresta

Perto de Lojas

Perto de Mar

Perto de Praia

Povoação

Residencial

Estrada Pavimentada

Trânsito de Acesso Fácil

Montanhas

Vista para o mar

Vizinhança

Norte

Oeste

Este

Sudeste

Sudoeste

Sul

Localização

Pontos de Interesse

(Num raio de 2km)

A carregar pontos de interesse...

Ref. Imóvel: 126261044-81

Consultor Responsável

Agent Photo
Filipa Elias

Collection Vantagem Villa

Interessado neste Imóvel?

Simulador de Crédito Habitação

Montante do Empréstimo €212.500,00
Taxa (Euribor + Spread) 3.5%
Prestação Mensal: €823,21
Total a Pagar €395.138,78
Total de Juros €182.638,78
Gold Logo

Informações legais

Imóveis em destaque

Descubra as melhores oportunidades do mercado imobiliário português